Providing 3D modeling services of systems to ensure constructability, coordination, field clarification, and accuracy. Producing scaled layout trade drawings for installation.
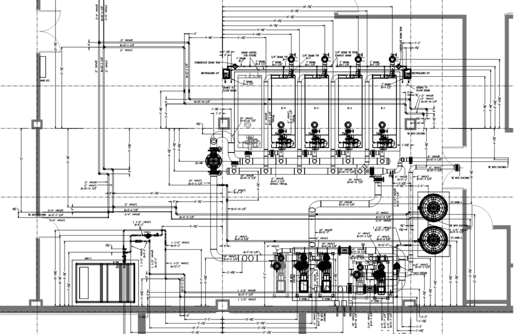
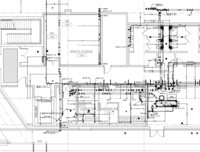
Your solution for mechanical room coordination and design. Detailed plan, isometric, sectional views and layout drawings to give your field and edge on understanding the whole picture when it comes to complex mechanical rooms.
Eliminating the hasseles of hosting and facilitating BIM coordination meetings/ models. Issuing clash reports and direction to resolve coordination issues to provide a complete clash free model for customers.
Have a deadline to meet? Mechancial Cad Services can provide your company with piece marked drawings with dimensions so your prefabrication shop can meet the delivery date.
Prefabrication saves mechanical contractors time and labor. Skids, assemblies, and support drawings.
Mechanical Cad Services can take your companies 2d drawings and turn them into 3d for coordination, presentation, or fabrication drawings. Drawings can be input into Navis models to meet your projects specifications.
At Mechanical CAD Services, we turn ideas into precise, production-ready designs. Our team delivers innovative CAD solutions tailored to meet the demands of any project, no matter the scale or complexity. From detailed 2D drafting to advanced 3D modeling and BIM coordination, we provide the expertise and technology to keep your projects moving forward with accuracy and efficiency.
Mechanical CAD Services offers cutting-edge CAD expertise to tackle projects of every scale and complexity. Whether it’s BIM modeling, detailed fabrication documentation, converting legacy 2D plans into dynamic 3D models, or producing specialized technical drawings, we deliver results that are precise, practical, and ready for the real world. Proudly serving Richmond, Virginia and nearby regions, we combine technical accuracy with industry insight to ensure your designs move seamlessly from concept to construction—efficiently, reliably, and with uncompromising quality.
We provide a full range of CAD solutions, including 2D drafting, 3D modeling, BIM integration, as-built drawings, and CAD conversions. Whether you need concept designs, fabrication-ready documentation, or detailed shop drawings, our team has the expertise to support your project from start to finish.
Yes! We specialize in working with existing plans—whether they’re paper drawings, PDFs, or older digital files—and converting them into accurate, modern CAD formats. We can also update or refine existing designs to meet current standards and project requirements.
We use advanced CAD software and a rigorous quality assurance process to deliver precise, error-free designs. Our experienced team double-checks every detail to ensure your drawings meet industry standards and are ready for fabrication, construction, or presentation.
Our services are tailored to a wide range of industries, including mechanical, architectural, structural, and industrial design. Whether you’re working on commercial construction, manufacturing, or a custom engineering project, we can deliver CAD solutions to match your specific needs.